Aluprof MB-77HS Hebeschiebetür – fachgerecht eingebaut in Leverkusen & Köln
Sie wünschen sich eine raumhohe Hebeschiebetür, die Ihren Wohnraum mit der Terrasse verschmelzen lässt? Das Aluprof MB-77HS ist dafür die perfekte Wahl – aber gerade bei diesen großen, schweren Elementen mit Flügeln bis 600 kg entscheidet die Montage über alles. Als Ihr lokaler Fachbetrieb in Leverkusen, Köln und Umgebung übernehmen wir von Elsfen Bauelemente Beratung, präzises Aufmaß und den millimetergenauen Einbau nach RAL-Richtlinien. Sauber, sicher und ohne ein einziges Risiko für Ihren Boden, Ihre Wand oder Ihre neue Tür.

Aluprof-Spitzentechnik trifft auf Elsfen-Montagegarantie
Das Aluprof MB-77HS ist technisch ein Meisterstück: barrierefreie Bodenschwelle, filigrane Slim-Line-Pfosten ab 47 mm Ansichtsbreite, Flügel bis 600 kg und Uw-Werte ab 0,84 W/(m²K). Aber Hand aufs Herz – eine Hebeschiebetür ist kein Standardfenster. Hier zählen Millimeter, Wasserwaage und Erfahrung mit schweren Elementen. Schon kleinste Verspannungen oder ein falsch ausgerichteter Rahmen können dazu führen, dass sich Ihr 600-kg-Flügel später schwer bewegen lässt oder undicht wird.
Genau hier liegt unsere Stärke: Unsere Monteure haben in Leverkusen, Köln und Umgebung bereits zahlreiche MB-77HS-Projekte realisiert. Wir wissen, worauf es bei großen Schiebeelementen ankommt – und Sie bleiben mit Ihrer Investition nicht alleine. Wenn Sie neue Fenster und Türen kaufen möchten, die Architektur und Funktion auf höchstem Niveau verbinden, sind Sie bei uns richtig. Unsere Monteure in Leverkusen nehmen sich Zeit für eine ehrliche Beratung und ein millimetergenaues Aufmaß bei Ihnen vor Ort.
- Erfahrener Einbau schwerer Elemente bis 600 kg
Damit sich ein 600-kg-Flügel später mit einem Fingertipp bewegen lässt, muss er millimetergenau ausgerichtet und perfekt eingestellt sein. Unsere Monteure bringen die nötige Erfahrung, das passende Werkzeug und genug Personal mit, um schwere Elemente sicher und ohne Schaden einzubauen. - Barrierefrei umgesetzt – luftdicht angeschlossen
Die flache Bodenschwelle ermöglicht den stufenlosen Übergang nach draußen. Wir setzen den Anschluss so um, dass er wirklich barrierefrei und gleichzeitig dauerhaft dicht ist – kein Tropfen Regen kommt durch. - Perfekte Systemkombination mit Aluprof-Fenstern
Ästhetisch und technisch nahtlos kombinierbar mit dem Aluprof MB-86N Fenstersystem – wir koordinieren beide Einbauten aus einer Hand für eine einheitliche Fassadenoptik.

Drei Konfigurationen – wir empfehlen die richtige für Ihr Projekt
Das MB-77HS bietet Standard-Dämmung, Passivhaus-Niveau und einzigartige architektonische Ecklösungen. Beim kostenlosen Beratungstermin vor Ort prüfen wir, welche Variante für Ihr Budget und Ihre Anforderungen wirklich die beste Wahl ist.
Solide Lösung für reguläre Wohnprojekte
Die ST-Variante ist unsere Empfehlung, wenn Sie eine großzügige Hebeschiebetür mit bewährter Dämmung und maximaler Stabilität wünschen. Wir setzen sie sauber und nach RAL ein – auch bei größten Flügelgewichten.
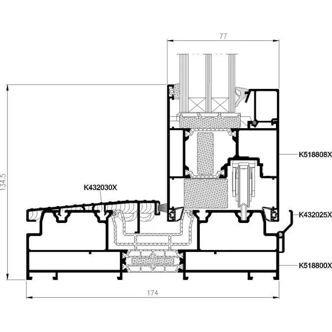
- 77 mm Flügelbautiefe
- Zweikomponenten-Dichtungssystem
- Luftdichtheit Klasse 4
- Schlagregendichtheit Klasse 9A
- Flügelgewicht bis 600 kg
Unsere Empfehlung für Passivhaus-Niveau
Wenn Sie maximale Energieeinsparung möchten, ist die HI-Variante unsere Empfehlung. Wir bauen sie mit besonderer Sorgfalt und absolut luftdichtem Anschluss ein, damit Sie tatsächlich von den exzellenten Wärmedämmwerten profitieren – auch bei riesigen Glasflächen.
- Uw-Werte ab 0,84 W/(m²K)
- Spezielle Isolier-Inserts im Profil
- Erweiterte thermische Trennzonen
- Passivhaus-tauglich
- Dreifachverglasung bis 58,5 mm
Architektonische Sonderlösungen
Sie träumen von einer Eckverglasung ohne störende Pfosten? Wir realisieren auch 90°- und 270°-Ganzglas-Ecken sowie dreigleisige Konfigurationen mit zwei Drittel Öffnungsweite – millimetergenau und sicher montiert.
- 90°- und 270°-Ganzglas-Ecken
- Zwei- und dreigleisige Varianten
- Bis zu 2/3 Öffnungsweite
- Slim-Line-Pfosten ab 47 mm
- Über 200 RAL-Farben und Holzoptik
Dreigleisige Systeme & Ausgleichsprofile – sauber für Sie umgesetzt
Das MB-77HS System passt sich auch Ihren Großprojekten perfekt an. Für besonders weite Öffnungen montieren wir die dreigleisige Variante, bei der sich massive Glasfronten elegant übereinander schieben lassen. So entsteht eine Öffnungsweite von bis zu zwei Dritteln der gesamten Elementbreite – ideal für Villen, Penthäuser und repräsentative Gebäude in Leverkusen, Köln und Umgebung.
Ein spezielles Ausgleichsprofil kompensiert mögliche Deckendurchbiegungen um bis zu 20 mm. Das ist gerade in Sanierungen oft entscheidend – wir prüfen beim Aufmaß genau, ob und wie das System bei Ihnen umgesetzt werden kann. Zudem beraten wir Sie zu drei Glasleisten-Designs (Standard, Prestige, Style), damit Ihre Hebeschiebetür optisch perfekt zu den restlichen Fenstern passt.
- Dreigleisige Konfiguration – sicher montiert
Rahmenbautiefe 271 mm für maximale Öffnungsbreiten – wir bringen die Erfahrung mit, um auch diese komplexen Konstruktionen millimetergenau einzubauen. - Ausgleichsprofil bis 20 mm – ideal für Sanierungen
Kompensiert Deckendurchbiegungen und garantiert eine präzise Montage auch bei anspruchsvollen Bestandsgebäuden – wir prüfen vor Ort, ob es bei Ihnen passt. - Ehrliche Beratung zu Glasleisten-Designs
Standard, Prestige oder Style – wir helfen Ihnen ohne Verkaufsdruck, das passende Design für Ihre Architektur zu finden.

Einblicke in das MB-77HS – Profile, Ecklösungen & Designvielfalt
Sehen Sie selbst, was Sie von einer fachgerecht eingebauten Aluprof MB-77HS Hebeschiebetür erwarten dürfen. Klicken Sie auf die Bilder für vergrößerte Detailansichten.
Premium-Details & unsere Einbau-Qualität
| Eigenschaft | Was Sie davon haben |
|---|---|
| Rahmenbautiefe | 174 mm (2-gleisig) / 271 mm (3-gleisig) – wir prüfen, welche Variante zu Ihrem Bauwerk passt |
| Flügelbautiefe | 77 mm – kompakt und stabil, sauber von uns eingebaut |
| Verglasungsdicke | 13,5 bis 58,5 mm – wir empfehlen die richtige Verglasung für Ihr Projekt |
| Ansichtsbreite (Pfosten) | 47 mm oder 50 mm (Slim Line) – maximaler Lichteinfall durch filigrane Profile |
| Uw-Wert | ab 0,84 W/(m²·K) – Passivhaus-tauglich, nur mit luftdichtem Anschluss erreichbar |
| Luftdurchlässigkeit | Klasse 4 (EN 12207) – Höchstwert, den wir durch sauberen Anschluss absichern |
| Schlagregendichtheit | Klasse 9A (EN 12208) – dauerhaft dicht bei jeder Witterung |
| Windlastwiderstand | bis Klasse C4 (EN 12210) – auch für exponierte Lagen geeignet |
| Max. Flügelgewicht | bis 600 kg – millimetergenau ausgerichtet für mühelose Bedienung |
| Varianten | ST & HI – wir empfehlen die richtige Stufe für Ihr Projekt |
| Glasleisten | Standard, Prestige, Style – passend zum gewählten Fenstersystem |
| Unsere Montageleistung | Beratung, Aufmaß, Lieferung, Einbau nach RAL, Altelement-Entsorgung & Endabnahme – alles aus einer Hand |
Bereit für Ihre neue Hebeschiebetür? Wir kommen zu Ihnen.
Vereinbaren Sie jetzt Ihren kostenlosen Beratungs- und Aufmaßtermin in Leverkusen, Köln oder Umgebung. Wir prüfen vor Ort, welche MB-77HS Variante zu Ihrem Projekt passt, beantworten alle Ihre Fragen und erstellen Ihnen ein faires, transparentes Festpreisangebot – unverbindlich und ohne Verkaufsdruck.
JETZT KOSTENLOSES AUFMASS ANFORDERNOffizielle Produktinformationen und technische Dokumentation finden Sie auf der Aluprof MB-77HS Herstellerseite.